Vila Šandrovac
Idejno Rješenje · Seoski Turizam · BBŽ · 2026

Vila
Šandrovac

Bilogora, Hrvatska

Prizemna vila 150 m² s bazenom 12×6 m, pečenjarom i panoramskim pogledom na Šandrovac i crkvu u daljini. Kompletno idejno rješenje za premium seoski turizam na obroncima Bilogore.

150 m² Vila ~4.900 m² Parcela 3 Suite Sobe Bazen 12×6 m
Scroll

Šandrovac, Bilogora

Parcele na obroncima Bilogore — zadnje u nizu za gradnju, okružene šumom s zapadne strane. Sa zapadne strane šuma pruža privatnost i tišinu, dok se prema jugoistoku teren otvara s panoramskim pogledom na Šandrovac i veliku župnu crkvu u daljini.

Adresa
Zagrebačka ulica, Šandrovac
Županija
Bjelovarsko-bilogorska
Parcela 1555/6
3.305 m²
Parcela 1555/1/B
900 čhv ≈ 1.600 m²
Ukupno
~4.900 m²
Pristup
Asfalt, el. energija, vodovod
Teren
Blagi nagib + ravnica (gradnja)
ZK status
1/1, bez tereta
Parcela satelit
Katastar
ZK
Uložak 1818 + 3609
Šandrovac, BBŽ
Bedeković Gabriela
Vlasništvo: 1/1

Raspored na Parceli

ZAPAD (lijevo)Šuma Bilogore — prirodni zaslon
ZAPAD uz viluParking 6+ mjesta
CENTARVila 150 m²
ISTOK (desno)Bazen + pečenjara
JUG-ISTOK (daljina)Šandrovac + crkva
Situacijski plan

Legenda

Šuma (zapadna strana)
prirodni pojas
Parking 6+ mjesta
~300 m²
Vila — objekt
150 m²
Natkrivena terasa
30 m²
Bazen 12×6 m
72 m²
Pool deck
~120 m²
Pečenjara + Lj. kuhinja
~60 m²
Wellness zona
~50 m²
Vrtne površine
~800 m²
Pogled → Šandrovac + Crkva
jugoistok
Ukupna parcela ~4.900 m²

Filozofija Projekta

Vila smještena na obroncima Bilogore spaja tradicijsku arhitekturu s modernim komforom. Šuma s juga i zapada pruža tišinu i privatnost, a prema jugoistoku teren se otvara panoramskim pogledom na Šandrovac i crkvu. Bazen se nalazi uz vilu s istočne strane — gledanje iz bazena prema otvorenom krajoliku.

Šuma & Privatnost
Gusta šuma uz zapad i sjever. Kompletna izolacija od susjedstva.
Panorama
Bazen i terasa s pogledom prema selu. Crkva Šandrovca u daljini.
Tradicija & Modern
Kamen + drvo + staklo. Kombinirani krov. Bilogorski karakter.
Premium Turizam
3 suite sobe, bazen, pečenjara, wellness. Kompletno iskustvo.

Prostorni Program

Spavaća soba 1 (master suite)18 m²
Kupaonica 1 (en-suite)8 m²
Spavaća soba 216 m²
Kupaonica 2 (en-suite)7 m²
Spavaća soba 316 m²
Kupaonica 3 (en-suite)7 m²
Boravak + Kuhinja (open)45 m²
Ulaz / Hodnik8 m²
Kotlovnica / Tech5 m²
Natkrivena terasa (istok)30 m²
UKUPNO VILA150 m²

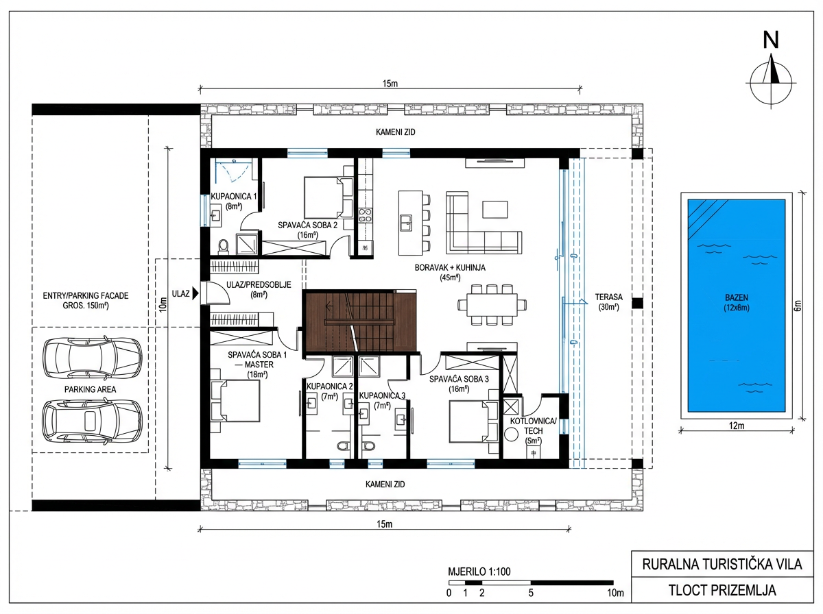
Tlocrt Prizemlja — P (150 m²)

Orijentacija: Ulaz / parking = ZAPAD (lijevo). Staklene stijene prema bazenu = ISTOK (desno). Sve sobe s izlazom na istočnu terasu prema bazenu i pogledu.
Tlocrt prizemlja
Zapadno pročelje — Ulaz
Masivna kamena fasada prema parkingu. Centralni ulaz u hrast. Kotlovnica u kutu. Ova strana gleda prema šumi i parkingu.
Istočno pročelje — Bazen & Pogled
Cijela istočna fasada = klizne staklene stijene (~15m). Pokrita terasa 30m². Svaka soba direktan izlaz. Bazen 12×6m pred vilom, pečenjara desno, panorama prema selu.
Materijali
Drvene grede — hrast (strop)
Travertin pod (topli bež)
Tamni aluminij — okviri
Kuhinjski pult — prirodni kamen
Kamen fasada — bilogorski vapnenac

Eksterijer Vile

Crkva i Selo Šandrovac u Daljini

Panorama crkva
Jedinstven položaj
Pogled s terase prema Šandrovcu

Opis panorame

Parcela se nalazi na obroncima Bilogore, na povišenom terenu. Prema jugoistoku teren se spušta prema selu Šandrovac. S terase, bazena i iz svake sobe vizualno dominira panorama zelenih bilogorskih obronaka. U daljini se ističe velika župna crkva Šandrovca sa zvonikom — najprepoznatljiviji element krajolika. Ovaj pogled čini lokaciju iznimno atraktivnom za seoski turizam.

Elevacija
Viša od sela — pogled odozgo
Crkva u daljini
Dominanta krajolika jugoistoka
Šuma zapadno
Kompletna privatnost sa zapada
Bazen s pogledom
Gledanje iz bazena prema krajoliku

Interijer Vile

Vanjski Ugostitetljski Sadržaj

Bazen i pečenjara
12×6 m
Dimenzije
1,5 m
Dubina
72 m²
Površina
~120 m²
Pool deck
Položaj pečenjare
Jugoistočno od vile, uz bazen s desne strane. Dolazeći od parkinga prolazi se pored pečenjare prema vili i bazenu.
Kameni paviljon
Debeli kameni zidovi od bilogorskog vapnenca. Kosi krov (terakota ili drvo). Spaja se s karakterom vile.
Roštilj / pečenjara
Klasična hrvatska pečenjara na drva. Kamin. Stol za 10 gostiju u masivnom hrastu.
Ljetna kuhinja
3m kameni pult, roštilj, sudoper, hladnjak, police. Natkrivena pergolom.
Pogled iz pečenjare
S mjesta pečenjare direktan pogled prema jugoistoku — Šandrovac i crkva u daljini vidljivi.
Wellness zona
Jacuzzi / sauna kabina uz pool deck. Privatni kutak okružen živicom.

Kompletni Prostorni Program

Vila — Program

Spavaća soba 1 (master)18 m²
Kupaonica 18 m²
Spavaća soba 216 m²
Kupaonica 27 m²
Spavaća soba 316 m²
Kupaonica 37 m²
Boravak + Kuhinja45 m²
Ulaz / Hodnik8 m²
Kotlovnica5 m²
Natkrivena terasa (istok)30 m²
UKUPNO VILA150 m²

Parcela — Program

Vila — bruto150 m²
Natkrivena terasa (istok)30 m²
Bazen 12×6m (istok od vile)72 m²
Pool deck + Wellness~170 m²
Pečenjara + Lj. kuhinja~60 m²
Parking 6+ mjesta (zapad)~300 m²
Maslinov vrt + Vrtne površine~800 m²
Šumski pojas (zapad/sjever)prirodni
UKUPNA PARCELA~4.900 m²
Vlasništvo 1/1, bez tereta Prizemnica · P Šandrovac, BBŽ
3 Suite Sobe
Svaka s kupaonom i izlazom na terasu
Bazen 12×6m
Uz vilu s istoka, pogled na krajobraz
Pečenjara
Kameni paviljon, stol za 10, kamin
Panorama crkva
Šandrovac i crkva vidljivi iz bazena